物件詳細

DETAILS

マウントマリーナ草津A棟

ホーム > 賃貸 > アパートマンション > 吾妻郡草津町-マンション-マウントマリーナ草津A棟

取引種別

賃貸
物件種別

マンション
賃料/面積
/
9万円/40.50㎡
,
,

物件基本情報

BASIC

賃料
9万円
間取り
1LDK
面積
40.50㎡(平米)
所在地:
群馬県吾妻郡草津町草津464-16
交通・周辺情報:
草津温泉バスターミナルより 徒歩10分
管理費・共益費:
負担なし  0円/月
仲介手数料:
99,000円(税込)
敷金/礼金:
1ヶ月/1ヶ月

物件詳細情報

SPECS

契約情報

Agreement

取引態様
媒介
賃料
9万円
敷金(保証金)
1ヶ月
礼金
1ヶ月
管理費・共益費
負担なし  0
契約期間
2年
更新料
普通借家契約(自動更新)
保証会社費用
初回保証料(賃料等の50%初回のみ)                   更新保証料(更新時1年毎)10,000円
仲介手数料
99,000円
保険
要加入
その他維持費
保証会社ご利用必須 ※申込時審査あり  
維持費合計

詳細

Detail

物件名
マウントマリーナ草津A棟
用途
住居(マンション)
所在地
群馬県吾妻郡草津町草津464-16
交通
草津温泉バスターミナルより 徒歩10分
構造・規模
鉄骨鉄筋コンクリート造(SRC造)
建物階数
12階建て
築年月-築
1990/11築-築36年以内
所在階
4階
駐車場
有り
1台分 費用負担なし (場所の指定なし 先着順)
面積
40.50平米
建物面積
平米
間取り
1LDK

設備

Equipment

電気
東京電力
ガス
無し(オール電化)
上水道
公営水道 ※給湯は小型電気温水器使用
下水道
公営下水
冷房
なし
暖房
床暖房 ※性能保証なし
バスルーム
無し
テレビ
有り
インターネット
無し(要工事)
ペット
不可
ドアホン
無し
キッチン設備
ミニキッチン
バスルーム設備
シャワー
部屋設備
玄関設備
シューズボックス
温泉
大浴場, サウナ,
温泉詳細
大浴場清掃時間がございます。清掃時間内はご利用できません。
建物設備
エレベーター, オートロック, 駐車場,
その他設備
ベランダ・バルコニー

備考・特約

Remarks

備考
※2026年4月中旬より入居可能です
特約事項
※契約開始日より2年未満に解約の場合、退去時に賃料1ヶ月分の違約金を別途お支払いいただきます。    

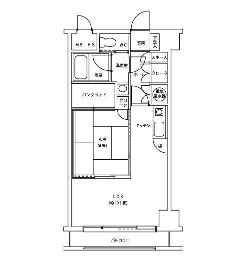
間取り図面

FLOORPLAN

,

関連する物件

物件についてのお問い合わせは お問い合わせフォーム もしくは お電話 にてご連絡ください。

お問い合わせフォーム Contact Form

    氏名または会社名

    必須

    メールアドレス

    必須

    電話番号

    必須

    お問い合わせ内容

    必須

    お電話 Telephone

    0279-82-1115
    取扱店
    フォレストリビング草津温泉店
    営業時間
    午前9時~午後5時(年中無休)

    ※年末年始を除く