物件詳細

DETAILS

ファインビュー草津

ホーム > 売買 > リゾートマンション > 吾妻郡草津町-マンション-ファインビュー

取引種別

売買
物件種別

マンション
価格/面積
/
450万円/29.75㎡
,
,

物件基本情報

BASIC

価格
450万円
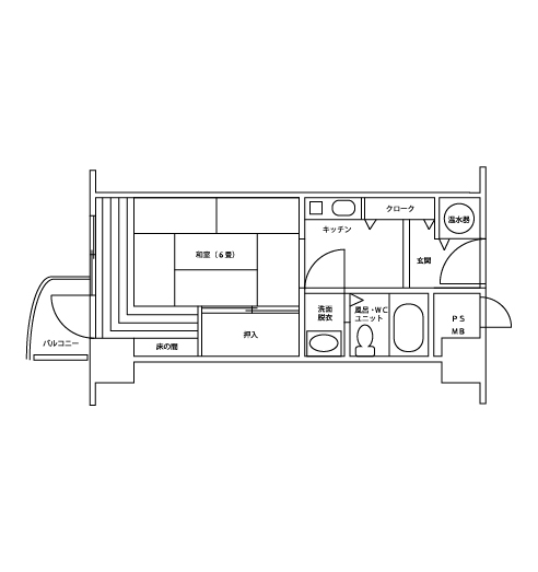
間取り
1K
面積
29.75㎡(平米)
坪/平米単価
約50万円/約15.1万円
所在地:
群馬県吾妻郡草津町草津464-48
交通・周辺情報:
草津温泉バスターミナルより 徒歩8分
管理費・共益費:
12,330円/月
修繕積立金:
1,370円/月

物件詳細情報

SPECS

契約情報

Agreement

取引態様
媒介
価格
450万円
管理費・共益費
12,330円/月
修繕積立金
1,370円/月
固定資産税
約約45,000円/年
町内会費・地区別費用
円/年
仲介手数料
330,000円
保険
任意加入
その他維持費
水道基本料 1,000円/月額 ※水道基本料は10m³迄含む 超過分130円/m³ ・協力金 300円/月額・施設維持費 1,000円/月額                    
維持費合計
16,000円

詳細

Detail

物件名
ファインビュー草津
用途
住居(マンション)
所在地
群馬県吾妻郡草津町草津464-48
交通
草津温泉バスターミナルより 徒歩8分
構造・規模
鉄骨鉄筋コンクリート造(SRC造)
建物階数
13階建て
築年月-築
1990/9築-築36年以内
所在階
6階
駐車場
有り
屋外65台無料
面積
29.75平米
建物面積
平米
間取り
1K

設備

Equipment

電気
東京電力
ガス
無し(オール電化)
上水道
公営水道 ※給湯は電気温水器使用
下水道
公営下水
冷房
なし
暖房
床暖房 ※性能保証なし
バスルーム
ユニットバス
テレビ
有り
インターネット
無し(要工事)
ペット
不可
ドアホン
確認中
キッチン設備
ミニキッチン
バスルーム設備
シャワー
部屋設備
エアコン, ロフト,
玄関設備
温泉
大浴場, サウナ,
温泉詳細
温泉大浴場(源泉掛け流し・加温・加水)8時~22時 サウナ 15時~22時
建物設備
エレベーター, オートロック, 駐車場,
その他設備

備考・特約

Remarks

備考
・コインランドリー:洗濯機・乾燥機各5台 ・オートロック:通年24時間
特約事項
・ペット不可 ・プール故障中 ・館内共用部全施設禁煙

間取り図面

FLOORPLAN

,

関連する物件

物件についてのお問い合わせは お問い合わせフォーム もしくは お電話 にてご連絡ください。

お問い合わせフォーム Contact Form

    氏名または会社名

    必須

    メールアドレス

    必須

    電話番号

    必須

    お問い合わせ内容

    必須

    お電話 Telephone

    0279-82-1115
    取扱店
    フォレストリビング草津温泉店
    営業時間
    午前9時~午後5時(年中無休)

    ※年末年始を除く